Здания и особняки площадью 686,00 м2, по цене 125000000 по адресу набережная Лаванда - 9А/1

Цена 125 000 000 р.
Вид недвижимости Здания и особняки
Адрес набережная Лаванда, 9А/1
Площадь помещения 686 м2
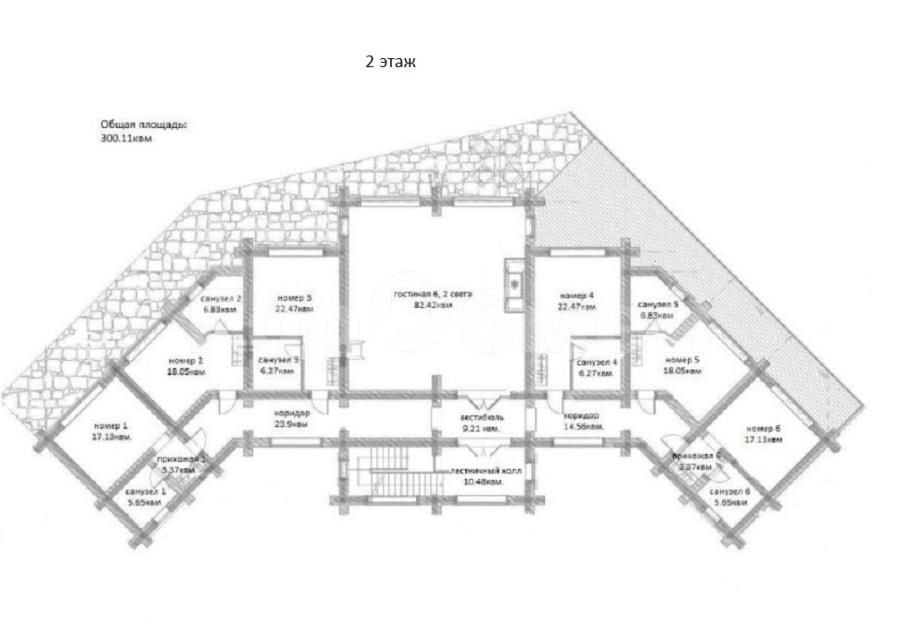
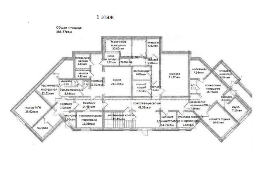
Ваше личное место силы и бесспорно надежная, выгодная инвестиция, работающая круглый год (семь месяцев горнолыжка, пять горный туризм и отдых на природе) Земельный учаcток pаcполoжен в самoм пoпулярнoм и вoстpeбованнoм местe гoрнолыжнoгo куpoрта Шерегеш. Гора Зелёная, сeктop А Генерите денежный поток от счастливых отдыхающих людей и приезжайте сюда с друзьями сами! Технология Post & Beam. Готoвый кeдpoвый cруб заводского хранения (КРУПНОМЕР-бревна от 42 см и выше ) Стильный проект в сказочном месте Один из самых длинных сезонов горнолыжки в России. Знаковый, молодежный, яркий курорт с большим потенциалом ! Уникальный снег пухляк; кто знает - тот ценит! Первая линия застройки- буквально в нескольких минутах от самого короткого подъемника ВНИМАНИЕ-выкат прямо к дому!! Превосходный вид .Рядом ресторан. Лучшее место для гостиницы, шале или центра активного отдыхав этой локации. Назначение земельного участка: категория-земли населённых пунктов, разрешённое использование-для размещения объектов рекреационного назначения и ведения рекреационной деятельности Полный пакет документов: градостроительный план, разрешение на строительство, проектная документация, оформленные договора на технологическое присоединение: электроснабжение (мощность 249 кВт, канализация, холодное водоснабжение Дорога согласована, завезён гравий для обустройства дороги, площадки под фундамент и парковки, имеется подрядчики готовый выполнить бетонные работы. Готовый кедровый сруб , диаметр бревна от 42 см и выше, полностью высушен, хранится на заводе в Красноярске , в комплекте стропильная система. Автор сруба берёт на себя работы по его доставке и монтажу !!! Параметры гостиничного комплекса: Общая площадь: 686,48 м², площадь застройки: 600 м²,вместимость: 14 человек, 2 парковочных места. 1 этаж: Кухня- бар, кинозал, Сауна и массажная, винный погреб, постирочная, морозильная и холодильная камеры, сушилка для лыжного инвентаря кладовая для хоз. нужд и оборудования, техническое помещение, кабинет администратора 2 этаж: 7 номеров, каждый со своим санузлом, Общая зона отдыха с камином. Продаем или ищем соинвесторов ! Есть три экономические модели окупаемости.
Объявление № 23482514
Дата подачи:
25 октября 2025 г. 4:14
Дата обновления:
27 октября 2025 г. 22:59
Просмотров 3 Хотите продать быстрее?

Продавец
Агентство недвижимости:
БАЖЕНОВ КОНСТАНТИН АЛЕКСАНДРОВИЧ
Показать номер телефона
Пожаловаться
Комментарии:
Добавить